기계 설계와 제조 공정에서 공차의 역할은 중요합니다. 이 글은 기계 가공 공차를 설정하고 설계하는 방법에 대해 설명 하겠습니다.
공차의 중요성
공차는 기계 부품이 정확하게 맞물리고 원활하게 작동하도록 보장합니다.
이는 제품의 품질과 성능에 직접적인 영향을 미칩니다. 정밀한 공차 설정은 제조 과정에서의 오류를 최소화하고, 부품의 내구성을 향상시키며, 전체 시스템의 안정성을 보장합니다.
가공 공차의 정밀도 파악
1. 기준 치수와 최대, 최소 허용 치수
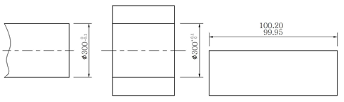
부품 제작에서 도면에 표시된 치수대로 정밀하게 같은 치수의 것을 만드는 것은 어렵고, 반드시 다소의 오차가 생김니다. 예를 들어, 어떤 제품을 30mm로 가공할 때 실제로 만들어진 치수는 30.03mm 또는 29.97mm로 정확히 30.00mm로 가공하는 데는 많은 시간과 비용이 필요하게 됩니다.
그래서 부품의 기계적 기능에 지장 없는 범위 내에서허용할 수 있는 오차를 정하고 있습니다. 이 오차의 범위를 치수 공차, 또는 공차라고 합니다.
제작도에서 30mm 라고 치수 지정이 있는 경우에는 0.015-(-0.010)= 0.025가 치수 공차로 됩니다. 그리고 당연히 이 부품의 허용되는 최대 치수는 30.015mm이고 이것을 최대 허용 치수라고 부릅니다. 똑같이 허용되는 최소치수는 29.990mm이고 이것을 최소 허용 치수라고 부릅니다.
그리고 가공의 기준이 되는 30mm를 기준 치수라 하고 실제로 가공된 치수를 실치수라고 부르고 있습니다. 더욱이 최대 허용 치수와 기준 치수와의 차, 즉 0.015mm를 윗치수 허용차, 위의 최소 허용 치수와 기준 치수와의 차 -0.010mm를 아래 치수 허용차라고 합니다. 치수 공차를 도면에 기입하는 데는 최대 허용 치수, 최소 허용 치수를 표시하는 허용한계 치수를 기입하거나 기준 치수 다음에 위의 치수 허용차, 밑의 치수 허용차를 기입하는 두 가지 방법이 있습니다.

어느 방법으로 기입하느냐의 대한 규정은 없으나 허용 한계 치수를 기입하면 기준 치수를 알기 어려움으로 상⋅하의 치수 허용차를 기입하는 것이 일반적입니다. 그래서 같은 도면에 치 수 공차가 같은 치수가 몇 개 있는 경우에는 이것들을 모아서 보통 허용차로 해서 별도의 표제란에 기입합니다.
그리고 부품마다 보통 허용차가 다를 때는 부품 번호에 따라서 보통 허용차 를 기입한다. 이때 공차가 들어 있지 않는 치수에 대해서는 모두 그 부품마다의 보통 허용차로 지시합니다.
| 치수의 구분 |
등급 (단위mm) | ||
| 정급 (12급) | 중급 (14급) | 조급 (16급) | |
| 0.5이상 3이하 | ±0.05 |
±0.1 |
|
| 3을 넘어서 6이하 | ±0.2 | ||
| 6을 넘어서 30이하 | ±0.1 | ±0.2 | ±0.5 |
| 30을 넘어서 120이하 | ±0.15 | ±0.3 | ±0.8 |
| 120을 넘어서 315이하 | ±0.2 | ±0.5 | ±1.2 |
| 315을 넘어서 1000이하 | ±0.3 | ±0.8 | ±2 |
| 000을 넘어서 2000이하 | ±0.5 | ±1.2 | ±3 |
절삭 가공 치수의 보통 허용차(JIS B 0405)
2. 끼워 맞춤과 기본공차
치수 공차와 끼워 맞춤에 대해서는 KS에 규정되어 있습니다.
앞에서는 치수 공차에 대해서 기술 하였으나, 이것들은 아무렇게나 정해도 된다는 것이 아니라 어느 치수에 대해서는 어느 정도로 한다는 국제적인 규격이 정해지고 있습니다.

이것을 500mm까지의 치수를 표와 같이 구분하고 또, 공차를 01 급에서 18급 까지의 20단계로 구분해서 각 치수 구분마다에 치수 공차를 정한 것입니다.
위의 표에서 1급을 보면 100mm (외평, 내경, 길이 등)의 공차는 2.5μm=0.0025mm로 되어 있습니다. 이와 같은 정밀도가 높은 공차에서는 도저히 끼워 맞춤에 사용할 수 없습니다.
그래서 01급에서 4급까지의 고정밀도의 공차는 게이지류의 공차로 사용되고 11급 이상은 끼워 맞춤이 없는 일반 부품의 공차에 사용되고 있습니다. 끼워 맞춤에 사용되는 것은 1급에서 10급까지 이다. IT 17 등급은 mm단위이고 그 이하는 ㎛ 단위로 환산됩니다.
(1) 끼워 맞춤의 종류
부품 제작에 있어서는 그 사용 목적에 따라 기준 치수에 대해 끼워 맞춤 기호를 사용하는 것인데 그 기호로 표시되는 위의 치수차가 허용차의 최대이고 밑의 치수 차가 허용차의 최소가 됩니다.
기준 치수와 공차와의 관계는 그림과 같이 되고 위의 치수 허용차는 ‘최대 허용 치수-기준 치수’로 밑의 치수 허용차는 ‘최소 허용 치수-기준 치수’ 로 표시할 수 있습니다.
여기서 단순히 치수 공차라고 부르는 경우가 있으나 치수 공차란 위의 치수 허용차와 밑의 치수 허용차와의 차라고 하는 것입니다.

끼워 맞춤은 치수를 잡는 방법에 따라서 다음 3종류로 나눌 수 있습니다
(가) 헐거운 끼워맞춤
구멍과 축 사이에 반드시 틈새가 있는 끼워 맞춤으로 구멍의 최소 허용 치수가 축의 최대 허용 치수보다 큽니다. 아래 그림과 같이 구멍의 최소 허용 치수에서 축의 최대 허용 치수를 뺀 값을 을 최소틈새, 구멍의 최대 허용치수에서 축의 최소 허용치수를 뺀 값을 최대틈새라고 합니다.

(나)억지 끼워 맞춤
구멍과 축 사이에 반드시 죔새가 있는 끼워 맞춤으로 구멍의 최대 허용 치수가 축의 최소 허용 치수와 같거나 또는 그보다 큽니다. 위의 그림과 같이 축의 최대 허용 치수를 뺀 값을 최소 죔새라고 합니다.
(다)중간 끼워 맞춤
구멍의 최소 허용 치수가 축의 최대 허용 치수보다 작고, 또 구멍의 최대 허용 치수가 축의 최소 허용 치수보다 큰 경우의 끼워 맞춤이고 구멍과 축의 실 치수의 크기에 따라서 헐거운 끼워 맞춤이되거나 억지 끼워맞춤이 됩니다.
| 구멍 기준 |
축의 공차역 클래스 | ||||||||||||||||
| 헐거운 끼워맞춤 | 중간끼워 맞춤 |
억지 끼워맞춤 | |||||||||||||||
| H6 | g5 | h5 | js5 | k5 | m5 | ||||||||||||
| f6 | g6 | h6 | js5 | k6 | m6 | n6 | p6 | ||||||||||
| H7 | f6 | g6 | h6 | js5 | k6 | m6 | n6 | p6 | r6 | g6 | t6 | u6 | x6 | ||||
| e7 | f7 | h7 | js5 | ||||||||||||||
| H8 |
f7 | h7 | |||||||||||||||
| e8 | f8 | h8 | |||||||||||||||
| d9 | e9 | ||||||||||||||||
| H9 | d8 | e8 | h8 | ||||||||||||||
| c9 | d9 | e9 | h9 | ||||||||||||||
| H10 | b9 | c9 | d9 | ||||||||||||||
(2) 끼워 맞출 때의 구멍과 축의 표시
끼워 맞춤 부분은 공차의 대소에 따라 끼워 맞춤의 등급과 기호가 정해져 있습니다.
그리고 끼워 맞춤에는 구멍을 기준으로 한 「구멍 기준」과 축을 기준으로 한 「축 기준」이 있으며 구멍 기준의 구멍 기호는 항상 대문자의 알파벳(A, B, C ‥)으로 표시하고 축 기준의 축기호는 소문 자(a, b, c ‥)를 사용해서 그 우측에 등급을 표시하는 숫자(1, 2, 3 ‥)를 붙여 기입합니다.
기계 가공 공차 설정 방법
- 재료 선택의 중요성: 다양한 재료는 각기 다른 가공 속성을 가지고 있으며, 이는 공차 설정에 큰 영향을 미칩니다.
- 가공 방법의 선택: CNC 밀링, 선반 작업, 그라인딩 등 다양한 가공 방법을 고려해야 합니다. 각 방법은 고유의 공차 한계를 가지고 있습니다.
- 기능적 요구 사항 고려: 부품의 용도와 기능을 면밀히 분석하여, 가장 적합한 공차 범위를 결정합니다.
- 산업 표준과 규정 준수: ISO, ANSI 등 국제 표준을 준수하여 안전하고 신뢰할 수 있는 제품을 설계합니다.
설계 절차 상세
- 초기 설계 단계: 부품의 기본 형상, 치수 및 기능을 결정합니다.
- 공차 분석 및 적용: 설계에 적합한 공차 수준을 정밀하게 분석하고 적용합니다.
- CAD 모델링 및 시뮬레이션: 컴퓨터 기반 설계 도구를 사용하여 부품의 3D 모델을 생성하고, 공차가 전체 설계에 미치는 영향을 시뮬레이션합니다.
- 프로토타입 제작과 테스트: 실제 제조 환경에서 프로토타입을 제작하고, 테스트를 통해 설계의 타당성을 검증합니다.
정확한 기계 가공 공차 설정은 제품의 성공을 위해 필수적입니다. 설계자들은 재료의 특성, 가공 방법, 그리고 제품의 기능적 요구 사항을 고려하여, 최적의 공차를 설정해야 합니다. 이러한 과정은 제품의 품질, 성능, 그리고 시장 경쟁력을 결정하는 중요한 단계입니다.
기계 설계의 기초 도면 해독
도면 보기 기초 1. 투상도 (1) 투상도의 정의 물품(대상물)에 일정한 법칙으로 광선을 비쳐서, 그 형상의 그림자를 평평한 화면에 비치는 것을 투상이라고 한다. 도면에서는 투상도를 이용하여 물
mecaji.tistory.com
기계 설계 편람 1편
기계 공학을 전공하는 공학도 및 제조업에 종사 중인 기계설계 분야 엔지니어들이라면 꼭 알아야 하는 내용들만 정리하였다. 기계공작법의 종류 - 절삭가공(chip 발생) 1.금속의 절삭성 : 절삭, 연
mecaji.tistory.com
기계 설계 편람 2편
기계 공학을 전공하는 공학도 및 제조업에 종사 중인 기계설계 분야 엔지니어들이라면 꼭 알아야 하는 내용들만 정리하였다. 선반의 종류 보통선반 - 베드, 주축대, 왕복대, 심압대, 이송기구 -
mecaji.tistory.com
'엔지니어 기술 자료 > 기계 설계' 카테고리의 다른 글
| 도면 정보 작성 및 기입 방법 (0) | 2022.12.01 |
|---|---|
| 치공구 결정 (0) | 2022.12.01 |
| 기계 설계의 기초 도면 해독 (0) | 2022.11.28 |
| 사출 성형 제품 도금 (0) | 2022.11.24 |
| 사출 성형 제품 도장 (0) | 2022.11.18 |
댓글